Type de mission: Mission de relevé de l’état existant d’une habitation individuelle et études pour le réaménagement complet.
Coût des travaux: 220 000 €
Surface hors oeuvre brute: 300 m²
Belle demeure, sûrement un ancien corps de ferme .
Ce fut d’abord la suppression du « compartimentage » général du lieu avec mise en valeur des poutres porteuses et des volumes, puis l’aménagement résolument contemporain pour l’organisation des différents espaces, l’esthétique et la poésie. Beaucoup d’harmonie et de plaisir de vivre.
Le chantier est en cours.
Photos de l’état existant:
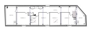
Relevé de l’état existant:
En cours de travaux:




