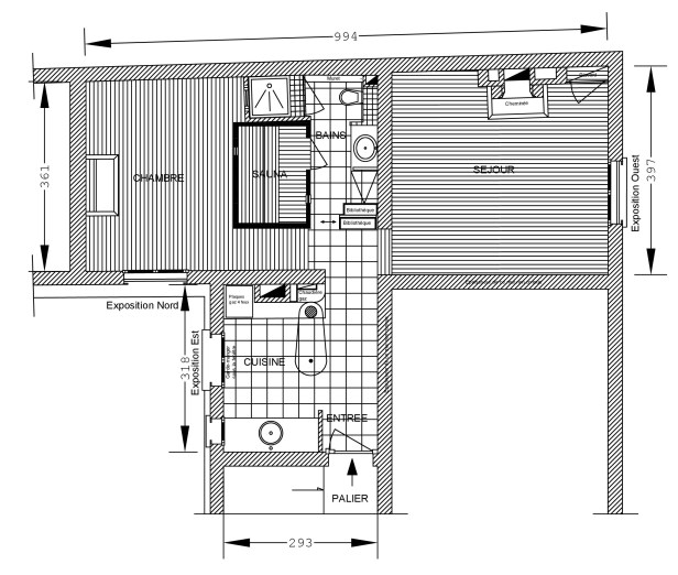
Type de mission: Mission de relevé de l’état existant d’un appartement pour un dossier de vente
Surface hors oeuvre brute: 45 m²
Appartement récemment rénové par une architecte, il est conçu pour le « plaisir de vivre ». Il comporte un sauna, une cheminée en état de marche. Le séjour est lumineux, tranquille et sans vis à vis.
Photos :
Plan:
