Lorsque des architectes se rencontrent sur un îlet, de quoi rêvent-ils?
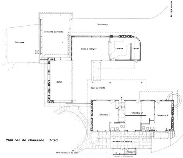
Claude Britz a décidé de relever tous les extérieurs, pierre par pierre, plante à plante. J’ai décidé de dessiner le bâti, pierre par pierre, carreau par carreau.
Nous avons rassemblé notre travail en un seul plan de 2 mètres de long.
Claude Britz, architecte Une longue pratique d’architecte et d’urbaniste en France et à l’étranger a amené Claude Britz à considérer l’infinie variété des « habitats traditionnels », construits en matériaux naturels, qui dans le monde constitue encore la majeure partie de notre patrimoine bâti, comme un art des modes d’habiter exprimant, des savoir-vivre en famille et en communauté en symbiose avec la nature, des savoir-faire en tous les domaines notamment constructifs qui sont à l’origine de nos techniques actuelles, une « durabilité » en faveur des générations futures, en toute économie de moyens ... Mandatée par des organisations internationales (dont l’UNESCO) et nationales, elle a effectué des missions d’expert auprès des autorités locales de divers pays (notamment : Seychelles, Guinée, Maroc, Syrie, Panama, Equateur, Algérie). Ces missions ont confirmé sa conviction d’encourager et d’aider les communautés à adopter des pratiques de réhabilitation endogène, à leur initiative, à la mesure de leurs propres moyens et en équipes pluridisciplinaires, tout en introduisant des moyens technologiques contemporains adaptés à leurs besoins et à leurs valeurs patrimoniales. Pour accroître sa visibilité, Claude Britz souhaite multiplier des actions auprès de communautés du monde entier, à travers des organismes internationaux et nationaux, publics et privés, agissant pour la sauvegarde, la valorisation et le développement des habitats. Elle propose également des conférences de sensibilisation illustrées de diapositives à travers des exemples d’habitats de pierre, de terre, de bois, de paille, etc., dans des contextes sociaux, culturels et économiques les plus différents.



