Type de mission: Mission complète pour la construction d’une maison individuelle.
Coût des travaux: 660 000 F
Surface hors oeuvre brute: 220 m²
Le plaisir de l’architecture, de la rencontre et du contemporain.
Agence Gecko architecture
Architecture, habitation, Portfolio
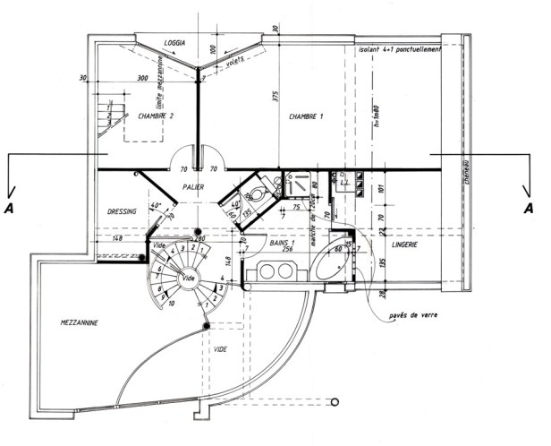
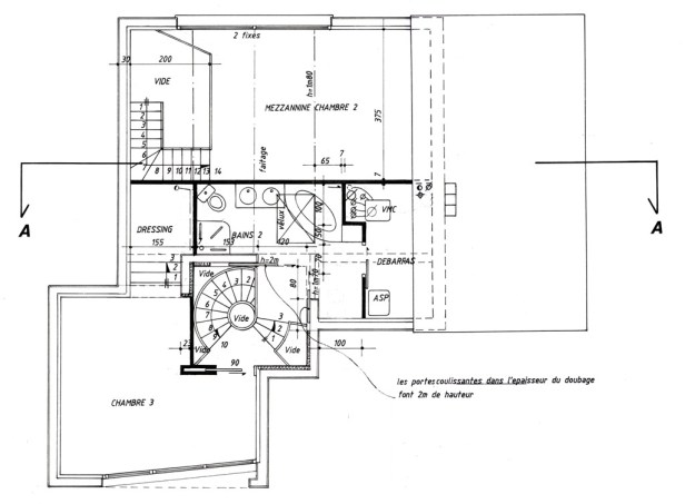
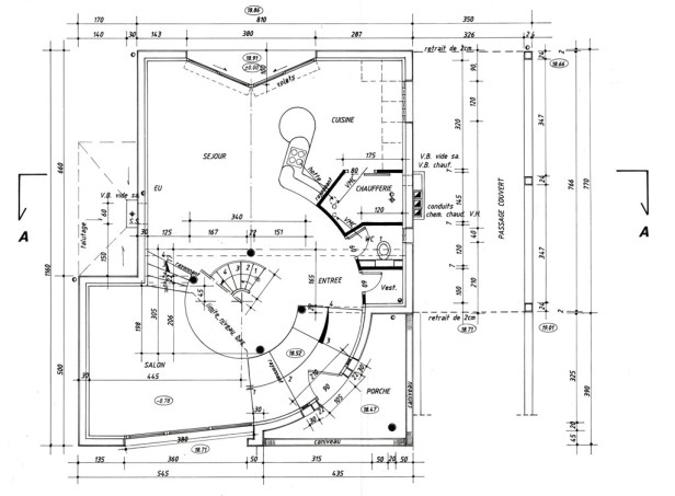
Détail des volumes de toiture
Type de mission: Mission complète pour la construction d’une maison individuelle.
Coût des travaux: 660 000 F
Surface hors oeuvre brute: 220 m²
Le plaisir de l’architecture, de la rencontre et du contemporain.