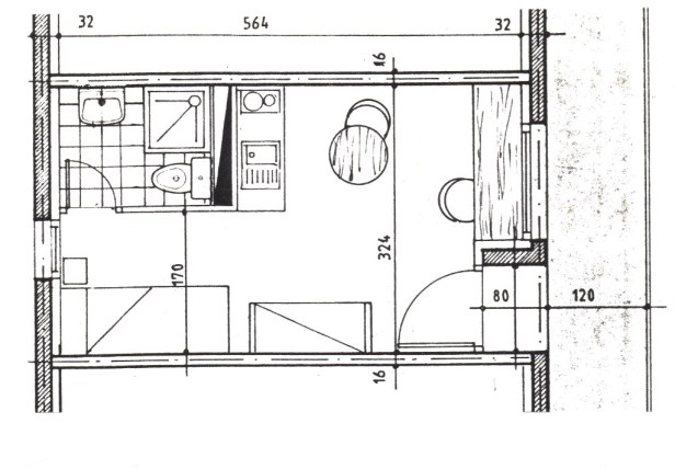
Type de mission: Mission complète pour la réalisation d’une résidence étudiante de 74 logements.
Coût des travaux: 7 300 000 F
Surface hors oeuvre brute: 2 239 m²
L’accès aux chambres se fait par des coursives extérieures, légèrement en décaissé pour éviter les vues directes dans les logements. Ces circulations permettent aussi d’éviter les longs couloirs sombres et la multiplication des sorties de secours. Elles permettent également la convivialité entre étudiants.





